Experiencia técnica aplicada a proyectos reales
A lo largo de los últimos años, hemos desarrollado planos y modelos BIM para sistemas de fachada ventilada en proyectos residenciales, comerciales y de gran escala.
Nuestro equipo ha colaborado con estudios y constructoras internacionales aportando precisión, cumplimiento y compromiso en cada entrega.
Capital Square, Edinburgh
128 West 23rd Street, New York
380 Montgomery, New Jersey
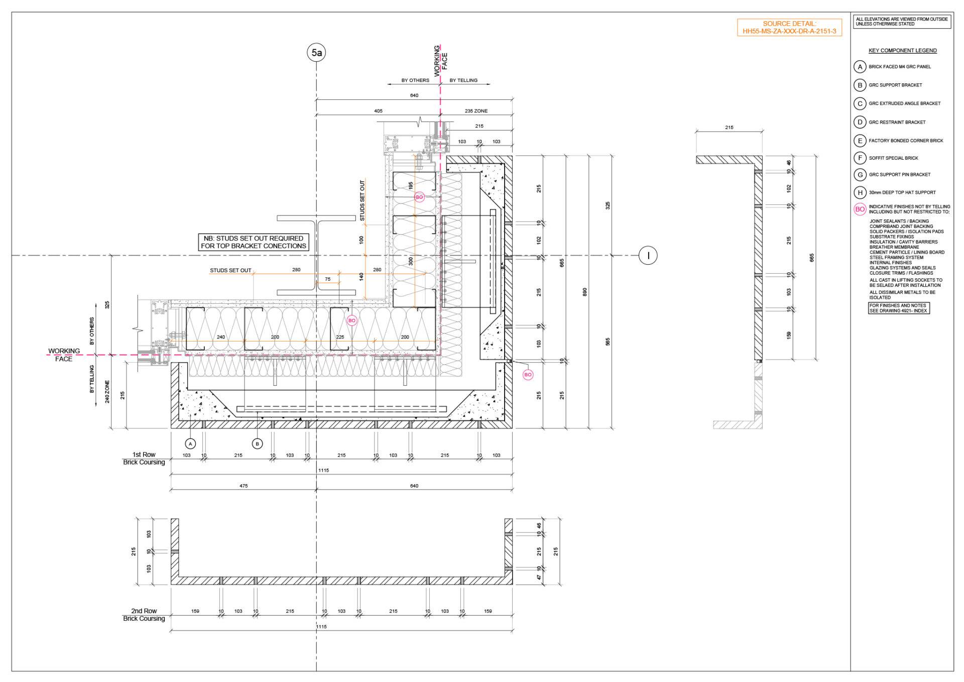
Vulkan, oslo
Totem Lake phase 2, Seattle
Henrietta House, London
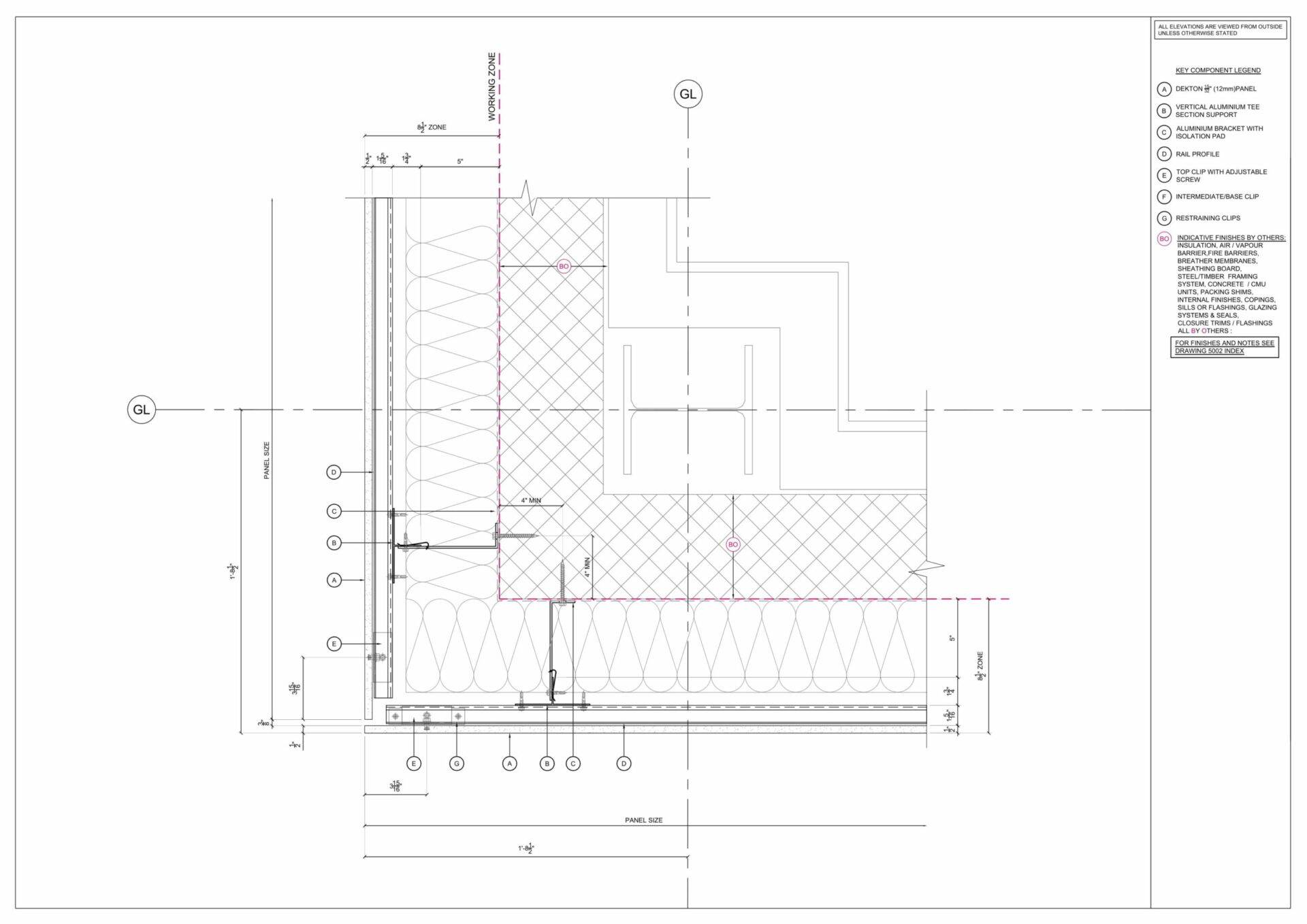
University of Washington BHTF, Seattle
AC Marriot, Georgia US
2226 3rd Ave, New York
Loreal Campus
St Stephens St Agnes School, Virginia
Little Gearies, London
MACC El Paso TX, Oregon
Localización: Edimburgo
Tipo: Fachada ventilada GRC
Área de fachada: 1100m2
Servicios de diseño:
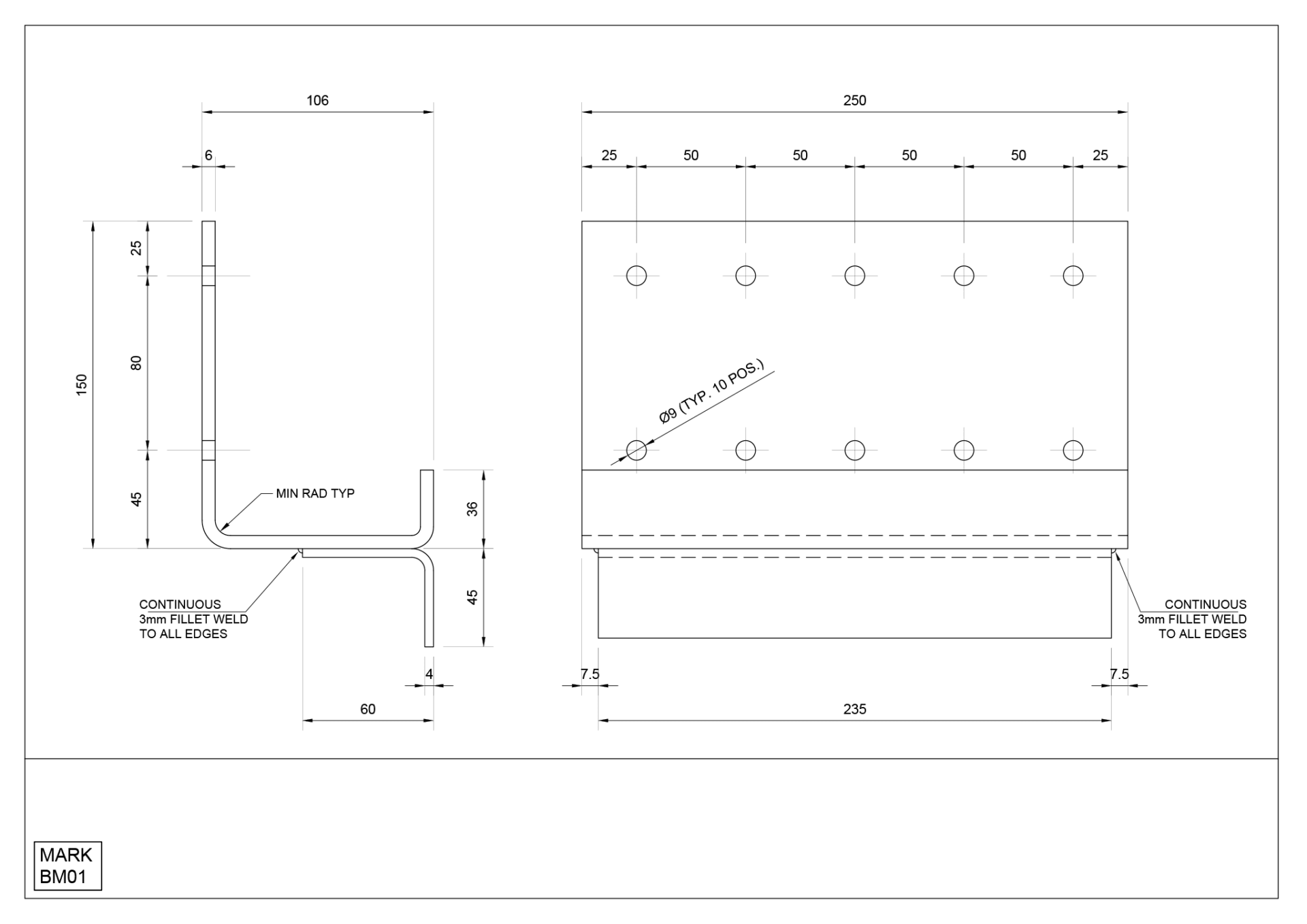
Planos instalación subestructura
Planos de fábrica componentes metálicos
Medición y lista de materiales
Localización: New York
Tipo: Fachada ventilada Terracotta
Área de fachada: 400m2
Servicios de diseño:
Planos instalación
Planos de fábrica componentes
Medición y lista de materialess
Localización: New Jersey
Tipo: Fachada ventilada y parasol de terracotta
Área de fachada: 480m2
Servicios de diseño:
Planos instalación
Planos de fábrica componentes
Medición y lista de materiales
Localización: Oslo
Tipo: Fachada ventilada GRC
Área de fachada: 420m2
Servicios de diseño:
Planos instalación
Planos de fábrica componentes
Medición y lista de materiales
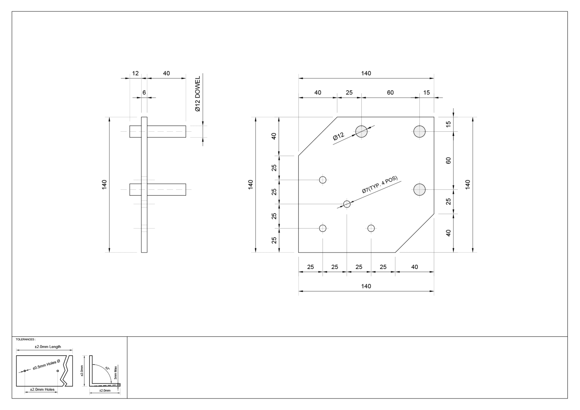
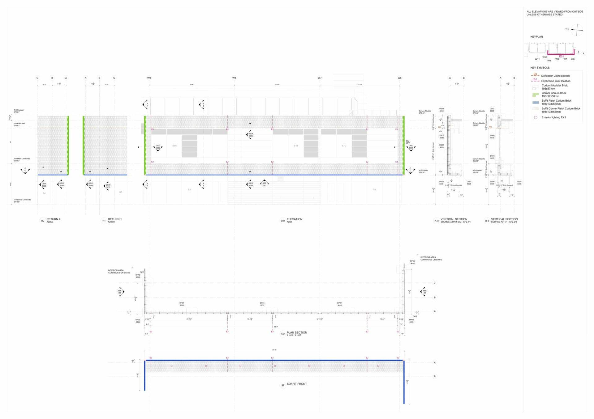
Localización: Seattle
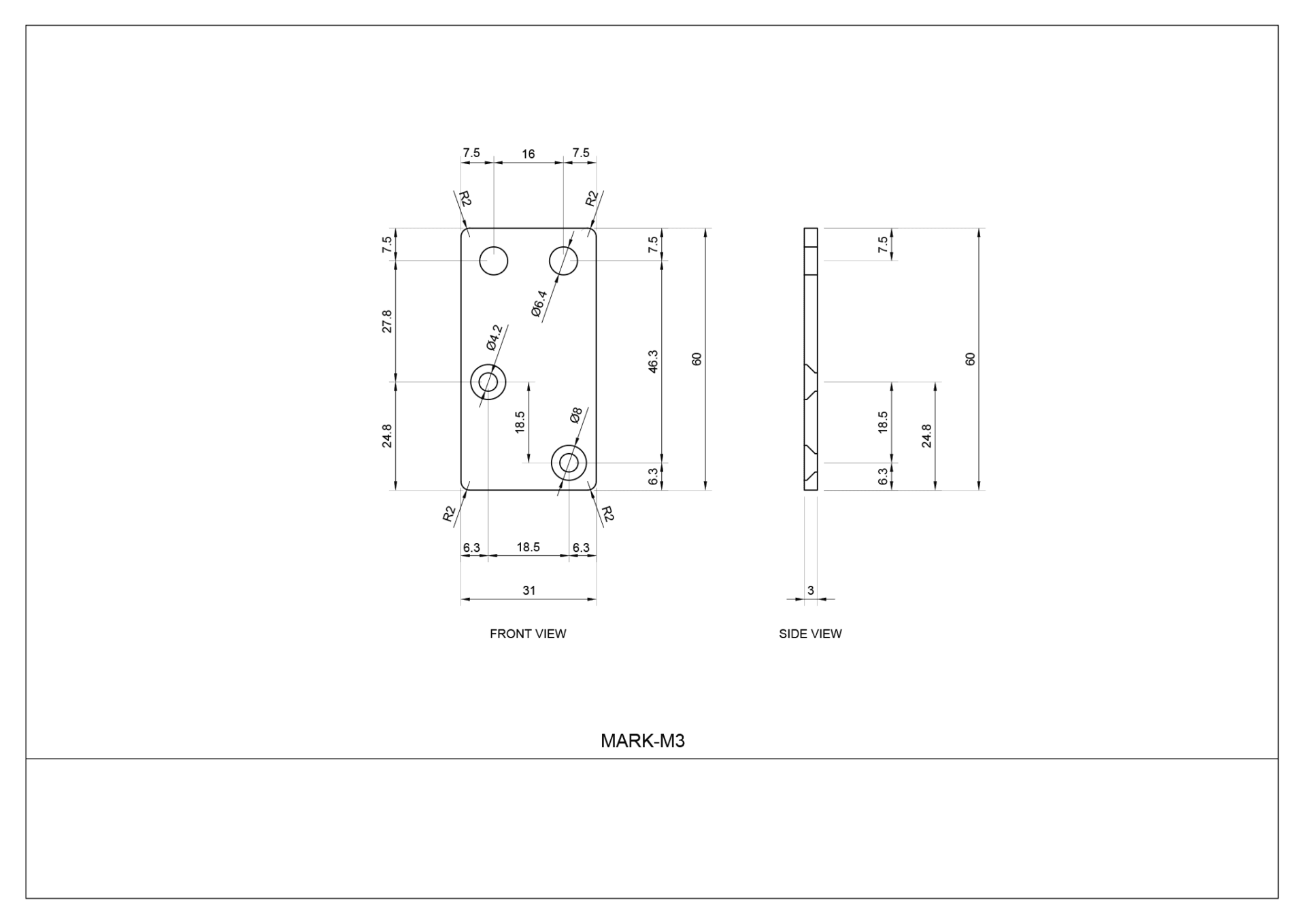
Tipo: Fachada tecnológica Corium brick
Área de fachada: 4600 m2
Servicios de diseño:
Planos instalación
Planos de fábrica componentes
Medición y lista de materiales
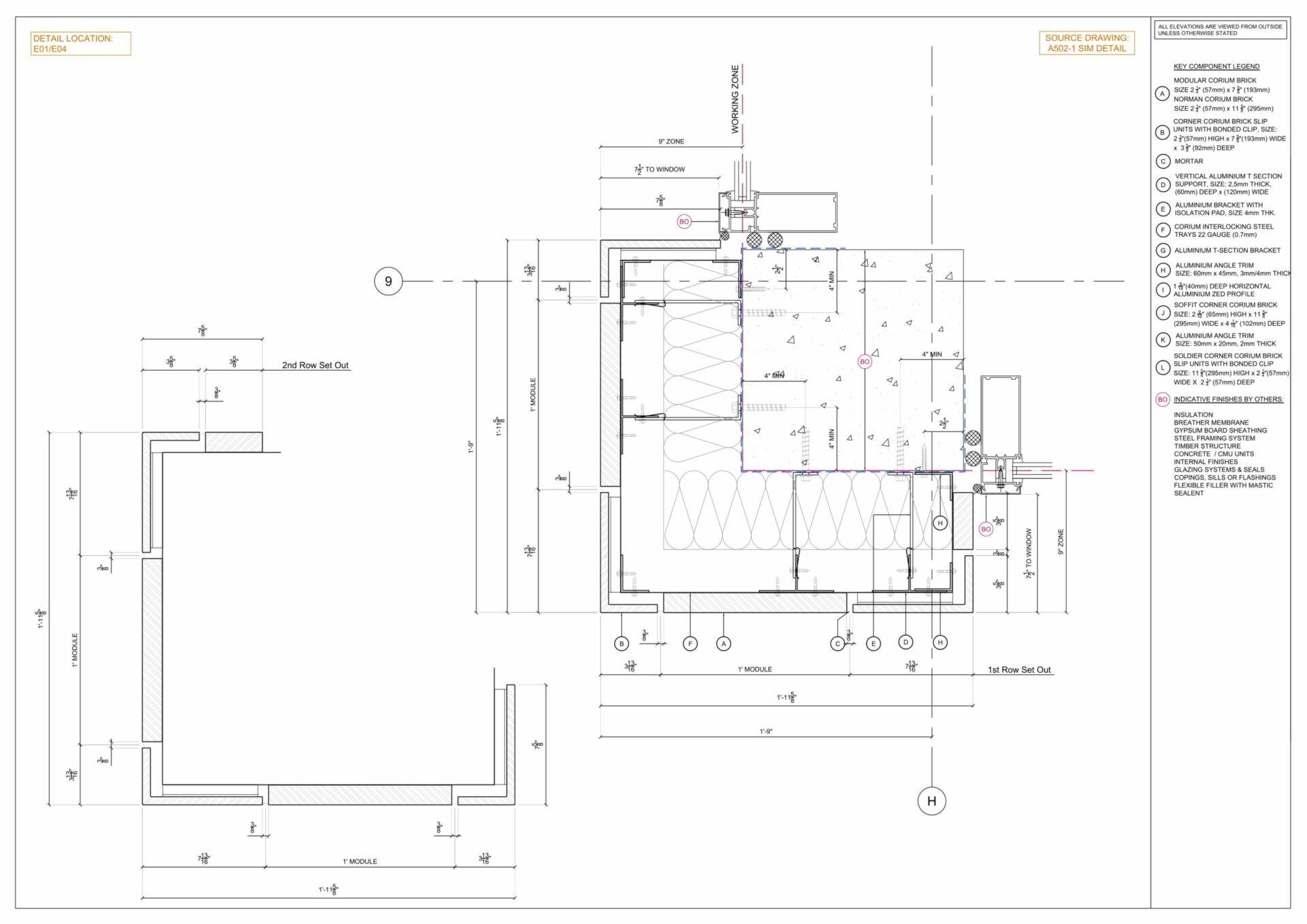
Localización: London
Tipo: Fachada ventilada GRC con ladrillo visto
Área de fachada: 1000 m2
Servicios de diseño:
Planos Mock-up
Planos de ingeniería para cálculo de paneles y subestructura
Planos instalación
Planos de fábrica componentes
Medición y lista de materiales
Localización: Seattle
Tipo: Fachada ventilada terracota
Área de fachada: 3200 m2
Servicios de diseño:
Planos instalación
Planos de fábrica componentes
Medición y lista de materiales
Localización: Georgia US
Tipo: Fachada ventilada de piedra LithoStone
Área de fachada: 1800 m2
Servicios de diseño:
Planos Mock-up
Planos instalación
Planos de fábrica componentes
Medición y lista de materiales
Localización: New York
Tipo: Fachada tecnológica Corium brick
Área de fachada: 4100 m2
Servicios de diseño:
Planos instalación
Planos de fábrica componentes
Medición y lista de materiales
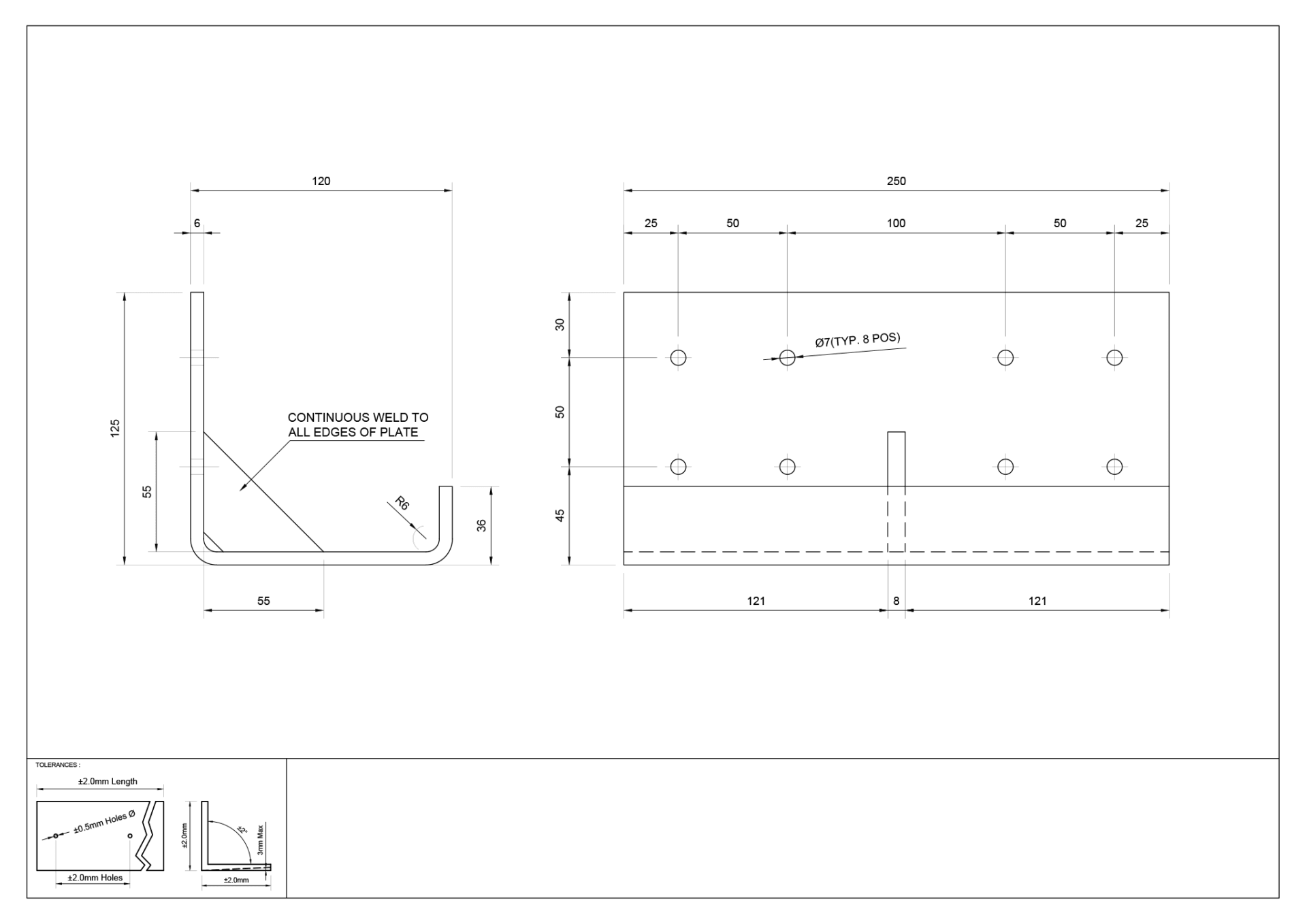
Localización: USA
Tipo: Fachada ventilada y parasol de terracota
Área de fachada: 5400 m2
Servicios de diseño:
Planos instalación
Planos de fábrica componentes
Medición y lista de materiales
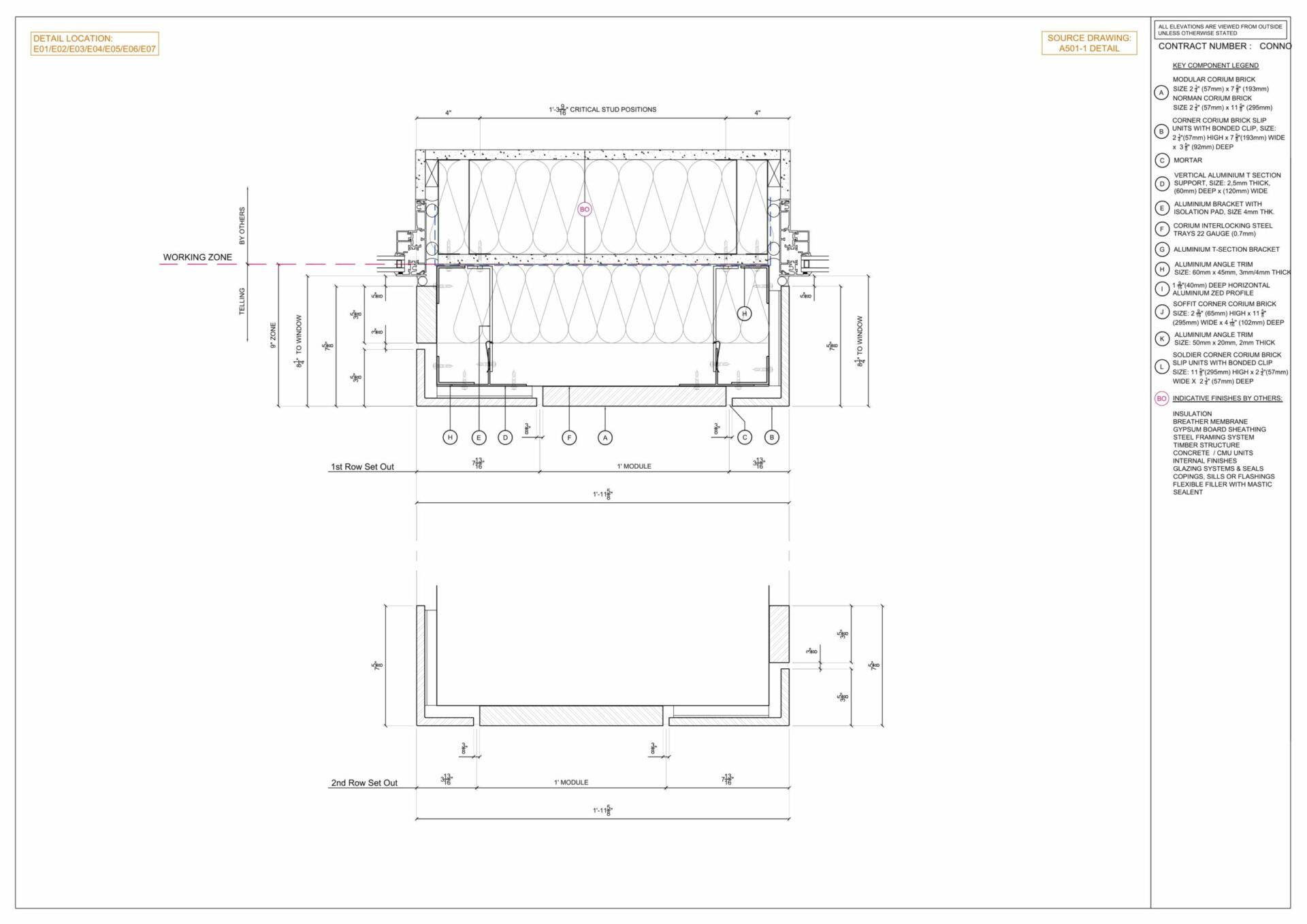
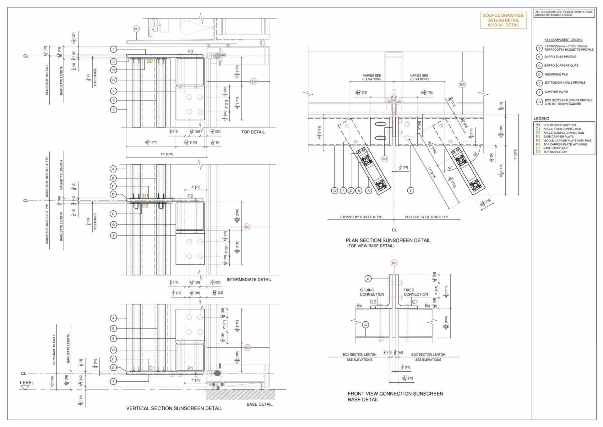
Localización: USA
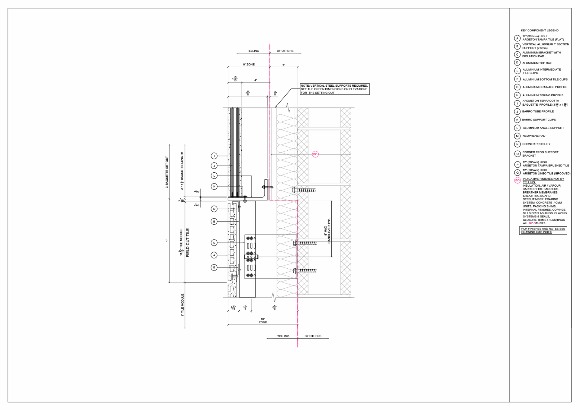
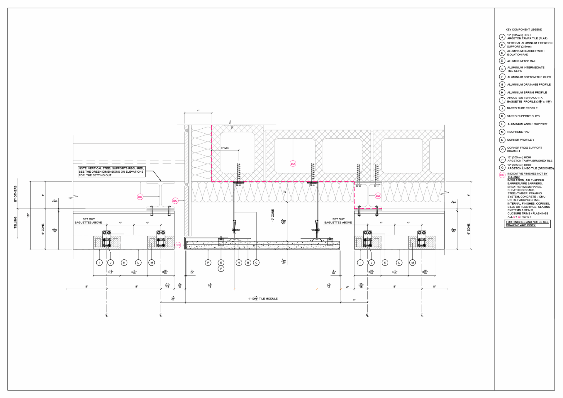
Tipo: Terracotta Rainscreen & Baguette Sunscreen
Área de fachada: 5400 m2
Servicios de diseño:
Planos de taller.
Planos de fabricación.
Lista de materiales y materiales necesarios.
Localización: Virginia
Tipo: Fachada tecnológica Corium brick
Área de fachada: 400 m2
Servicios de diseño:
Planos instalación
Planos de fábrica componentes
Medición y lista de materiales
Localización: London
Tipo: Fachada ventilada terracota
Área de fachada: 3400m2
Servicios de diseño:
Planos instalación
Planos de fábrica componentes
Medición y lista de materiales
Localización: El Paso, Oregon
Tipo: Fachada ventilada terracota
Área de fachada: 1150m2
Servicios de diseño:
Planos instalación
Planos de fábrica componentes
Medición y lista de materiales